141018, Московская обл, г Мытищи, пр-кт Новомытищинский, 39, помещение 13-Б/офис 17

4х комнатная квартира

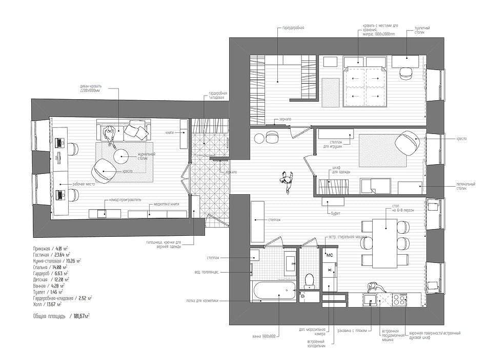
Описание

4-х комнатная квартира от застройщика представляет собой уютное и комфортабельное жилье, идеально подходящее для семей с детьми или тех, кто ценит личное пространство. Общая площадь квартиры составляет около 90-100 кв.м, что позволяет рационально использовать каждый квадратный метр.

Квартира оборудована 4 изолированными комнатами, каждая из которых имеет свой функционал. Спальни предназначены для комфортного отдыха и сна, а гостиная станет местом для общения и совместного времяпровождения. Кухня оборудована современной бытовой техникой и мебелью, что позволит готовить любимые блюда без лишних усилий.

Санузел раздельный, что значительно увеличивает удобство пользования, особенно если в квартире проживает большая семья. В прихожей предусмотрено место для шкафа-купе, что поможет сэкономить пространство и организовать систему хранения вещей.

В квартире выполнена качественная черновая отделка, что дает возможность жильцам оформить интерьер по своему вкусу. Застройщик предлагает различные варианты дизайнерских решений, чтобы каждый покупатель мог выбрать наиболее подходящий для себя вариант.

Расположение квартиры является одним из главных преимуществ – рядом находятся все необходимые объекты инфраструктуры: магазины, школы, детские сады, медицинские учреждения, остановки общественного транспорта. Во дворе дома обустроена детская площадка, а также зоны для отдыха и занятий спортом.

ЦЕНА: 25 300 000 р.
Название ЖК Солнечный берег
Кол-во комнат 4
Этаж 23
Общая площадь(м2): 103.4
Жилая площадь(м2): 62.3
Кухня (м2): 25
Санузлов: 1
Балкон (м2) 15
Заказать просмотр объекта
Все поля, отмеченные * обязательны для заполнения
Нажимая кнопку "Оставить заявку" Вы автоматически соглашаетесь с условиями пользовательского соглашения.